Accueil > Les références > Projets territoriaux > Les Quartiers de Pouilly
Les Quartiers de Pouilly
-
QUARTIERS DE POUILLY (Dijon)
Mission complète de conception et maîtrise d’oeuvre
-

QUARTIERS DE POUILLY
Dijon
Mission complète de conception et maîtrise d’oeuvre
Maître d’ouvrage : AFUL « Château de Pouilly »
Superficie : 60 ha
1986-2000
-
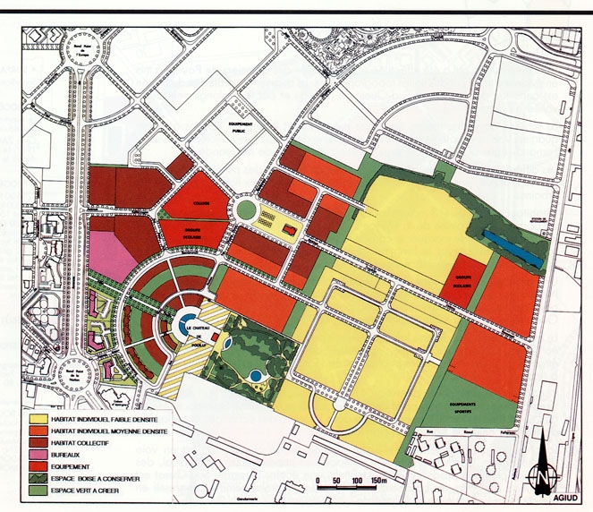
Le Clos de Pouilly est une opération urbaine de plus de soixante hectares qui a participé au développement démographique et économique de Dijon au cours des années 1990 à 2010.
De nature totalement privée, l’aménagement s’est réalisé très progressivement et a permis de mettre en valeur la qualité remarquable du site. Composé de 5 lotissements successifs situé entre le rond-point de la Nation, l’avenue de Langres et l’avenue de Stalingrad, « le Clos de Pouilly » a permis la création d’une diversité d’habitat au sein d’un secteur de développement mixte, à quelques pas de la Toison d’Or, et à un quart d'heure du centre-ville. -
Cette opération très urbaine regroupe près de 5.000 habitants, des commerces et des activités avec des centaines d’emplois, un groupe scolaire, un centre de culte et des espaces sportifs dans un cadre verdoyant ordonnancé à la française autour du château et de son parc. Il bénéficie du passage du tramway rond-point de la Nation.
Le choix procédural : l’AFU Libre
DIJON souhaitait, dans les années 85-90, fortement s’étendre au NORD en créant :
- Deux quartiers d’habitat de 60 hectares chacun « le Clos de Pouilly » et « Les Coteaux de Suzon », de part et d’autre de l’avenue de Langres, voie d’entrée Nord de la ville.
- Un quartier d’activités tertiaires « Le Parc Technologique »
- Un quartier commercial et de services « La Toison d’Or »
Le premier quartier d’habitat portait sur un parcellaire morcelé avec de nombreux propriétaires qui n’ont pas voulu s’associer avec la Ville de Dijon, propriétaire important sur ce secteur. La Ville de Dijon a donc opté pour la création d’une ZAC « Les Coteaux de Suzon ».
Le second quartier d’habitat d’une égale importance était essentiellement porté par une famille de propriétaires, la famille PETOLAT, et constituait une belle propriété habitée, accompagnée d’une ferme agricole avec des terres en bail. Le bâti était composé d’une maison bourgeoise avec des dépendances - notamment des écuries -, avec un grand parc avec des arbres majestueux très anciens, d’un colombier, et d’un corps de ferme avec des remises et hangars.
Tous les propriétaires ont choisi de réaliser un remembrement urbain et ont constitué une AFU sous forme libre. Par contre, eu égard à l’ampleur de la superficie et à la durée légale de 6 ans maximum d’un lotissement, il a été décidé de concevoir un plan d’ensemble total, et de le concrétiser avec des lotissements successifs.
La scission de l’opération se justifiait d’autant plus qu’une procédure de modification d’un lotissement est très difficile à valider. Elle nécessite l’accord d’une majorité qualifiée des acquéreurs, difficile à obtenir face à l’ampleur du nombre d’acquéreurs. Or comment ne pas évoluer sur un projet d’urbanisme portant sur 60 hectares ? Ainsi, une seule AFU a regroupé l’ensemble des propriétaires et plusieurs lotissements ont été autorisés pour la réalisation de l’aménagement et l’adaptation dans le temps du projet aux évolutions du besoin et du marché. Cette solution s’est avérée pertinente.
Développement progressif du quartier : l’AFU une formule souple
Dans une AFU, il n’y a pas de frais de portage du foncier, donc pas d’intérêts financiers de prêts pour l’acquisition des terrains. Les propriétaires les détiennent dans leur patrimoine.
L’AFU vend les premiers terrains à bâtir et consacre l’argent de la vente aux frais d’aménagement, viabilisant d’autres terrains à bâtir permettant la vente d’autres lots.Le projet se réalise progressivement par un système que l’on peut qualifier de « boule de neige », avec un excédent qui se dégage assez rapidement, et une adaptation sans contrainte au rythme du marché.
Une opération novatrice :- la création d’un des premiers bassins de rétention d’eaux pluviales couvert intégré en milieu urbain de l’agglomération dijonnaise, et la réalisation d’un fonçage sous la voie SNCF pour le passage des eaux pluviales,
- des secteurs d’habitat pavillonnaire en zone 30 annoncés par des « portes »,
- un espace public généreux compensant une taille modeste des terrains à bâtir pavillonnaires,
- un espace de circulation des véhicules parfaitement dimensionné et « chicané » pour favoriser la sécurité et la tranquillité des habitants,
- l’intégration de la mixité sociale et fonctionnelle, et une grande diversité de l’habitat (du pavillonnaire…au collectif structurant sur place urbaine).
-
La composition urbaine se développe autour d’une structure viaire très ordonnée et pour l’essentiel sur une base orthogonale adoucie par des courbes venant souligner la présence du château de Pouilly d’un côté et du parc du château de l’autre, tous deux remis gracieusement au patrimoine de la ville de Dijon.
-
Le plan de masse s’articule autour du respect de la mémoire du site composée :
-
- du château de Pouilly et de ses dépendances,
- du parc du château,
- du bois de la piscine,
- d’un colombier dans l’ancienne ferme,
- de l’allée des marronniers.
Ces voies en hémicycle donnent un caractère très marqué au plan de masse, comme un rappel du lieu chargé d’histoire, et les droites perpendiculaires facilitent la lecture urbaine du quartier.
-
Le développement des modes de déplacements alternatifs à la voiture :
Une coulée piétonne végétalisée forme une boucle de plus d’un kilomètre avec un parcours au sein même du parc.
Cette promenade bordée d’espaces verts assure la liaison entre ces différents lieux, avec un aménagement très géométrique et soigné, sauf dans l’espace du bois de la piscine, pour lequel le caractère très naturel a été préféré (pour l’anecdote un film fût tourné autour de cette piscine extérieure de belle qualité pour l’époque avec Brigitte Bardot).
L'opération bénéficie également d’une desserte en transport en commun de type bus le long de l'avenue Franklin Delano Roosevelt, et de tramway le long de l’avenue de Langres. -
Le long de l’avenue de Langres et du rond-point de la Nation se trouvent les bâtiments d’activités tertiaires bénéficiant de la vitrine commerciale de l’axe majeur de l’entrée nord de Dijon.
Puis l’habitat collectif trouve sa place essentiellement en alignement des voies. Des immeubles s’élèvent sur 4 niveaux le long des voies principales, le boulevard Rembrand, la rue Manet et la place Grandville et diminuent à 3 niveaux au-delà.
-
La voie structurante principale desservie par les bus, l’avenue Franklin Delano Roosevelt accueille l’habitat social.
Les espaces pavillonnaires, bien différentiés, sont annoncés par des « portes » formées par des plateaux surélevés et colorés, incitant au ralentissement des véhicules. Ils bénéficient de voies spacieuses et très végétalisées dont la chaussée n’est pas surdimensionnée pour donner un caractère intimiste et résidentiel.
-
Perspectives visuelles et parc urbain :
-
Création de lieux de vie : la place Granville
-
La place Grandville*, est un élément structurant essentiel de ce nouveau quartier. Elle a été aménagée en dernier lieu afin d’inciter à l’installation de commerces en rez-de-chaussée par la présence préalable d’un nombre d’habitants suffisant, permettant de créer un lieu de rencontre fort d'un cadre de vie durable et du développement du lien social.
La place elle-même, particulièrement travaillée, accueille un lieu de culte ainsi qu’un ensemble de jeux d’eau apprécié par les riverains et habitants pendant les périodes de chaleur, qui viennent renforcer son caractère central majeur. Cette place participe à la dynamique de l’opération.
*réalisation : Ville de Dijon -

-







